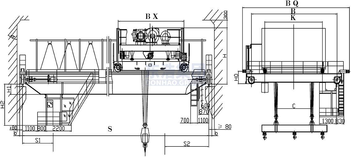
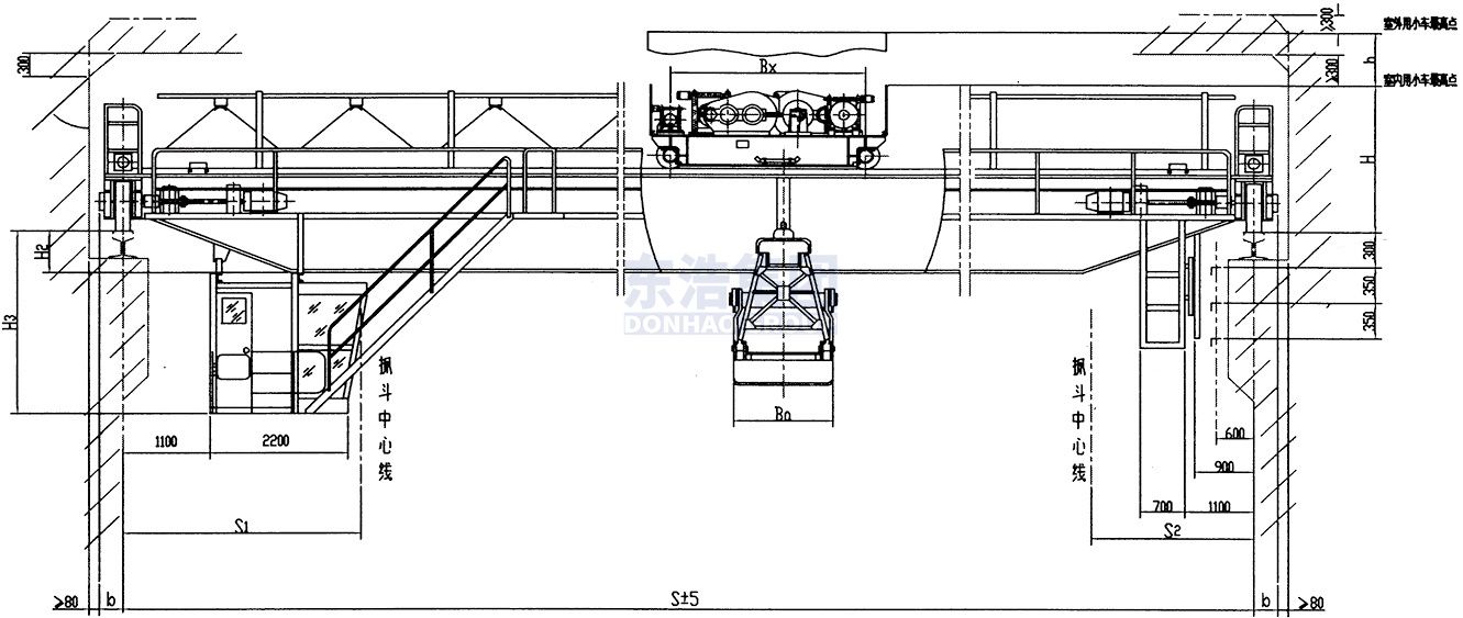
Grab bridge crane
The grab bridge crane is mainly composed of a box shaped bridge, a grab trolley, a large vehicle operating mechanism, a driver's cab, and an electrical control system. The retrieval device is a grab bucket.
The grab car is equipped with a lifting mechanism and an opening and closing mechanism, and the grab is wrapped around the lifting and opening drums with four steel wire ropes. The opening and closing mechanism drives the grab bucket to close and grab materials. When the bucket mouth is closed, the lifting mechanism is immediately activated to evenly load the four steel wire ropes for lifting work. When unloading, only the opening and closing mechanism is activated, and the bucket mouth immediately opens, tilting the material.
Except for the lifting mechanism, the other structural parts of this crane are basically the same as those of a hook bridge crane.
















