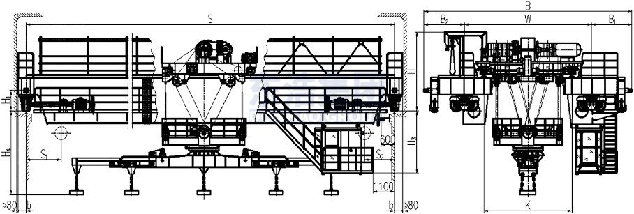
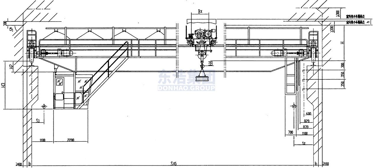
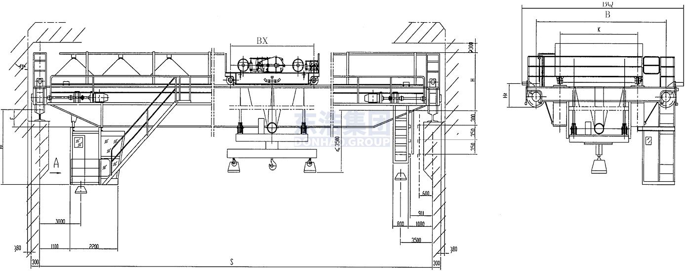
Electromagnetic hanging beam bridge crane
This crane uses hanging beams to lift long steel billets, plates, bars, coils, and other items, equipped with electromagnetic suction cups or clamps or special group hooks for lifting. It mainly consists of a box shaped bridge, a lifting trolley, a large vehicle operating mechanism, a driver's cab, and an electrical control system, equipped with a power-off magnetic protection system. The lifting mechanism often adopts a single motor, double reducer, and double drum arrangement, in the form of double lifting points. The arrangement of hanging beams can be divided into two types: perpendicular to the main beam or parallel to the main beam. The other forms are the same as the QD type crane.









Write your message here and send it to us








